Architekt
Dipl. Ing. W. Cohrs

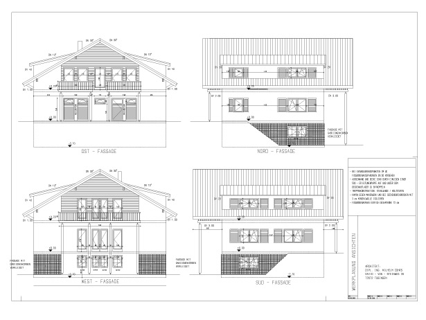
Einfamilienhaus in Kärnten, Österreich

Das bestehende Haus sollte umgebaut werden. Die Vorgaben des Bauherrn waren mit den Gegebenheiten nicht umzusetzen. Abriss und Neubau war die einzige Alternative.

Unter Berücksichtigung der traditionellen Bauweise wurde das Haus ökologisch und entsprechend der Technologie des 21. JH im Einklang mit der Umgebung geplant.

Kärnten Bauplan
Kärnten Haus aussen
Kärnten Pavillon
Kärnten Balkon
Kärnten Haus Abgang
Kärnten Schuppen
arrow left
arrow left
arrow right